BR01 | Bragança
Résidentiel
Client : Privé
Superficie : 606,67 m2
Équipe : à embaucher
Construction : à contracter
Contractualisation : 2018
[On going]
L’endroit | Été 2018

Conçu dans une zone rurale à la périphérie de Bragança. Où un équilibre a été recherché entre l’intimité avec le voisinage et l’ouverture totale sur la Serra.
Dans une relation franche avec l’environnement naturel, deux bâtiments aux fonctions distinctes sont demandés : un corps pour le logement et l’autre pour l’exposition et le traitement des voitures personnelles.
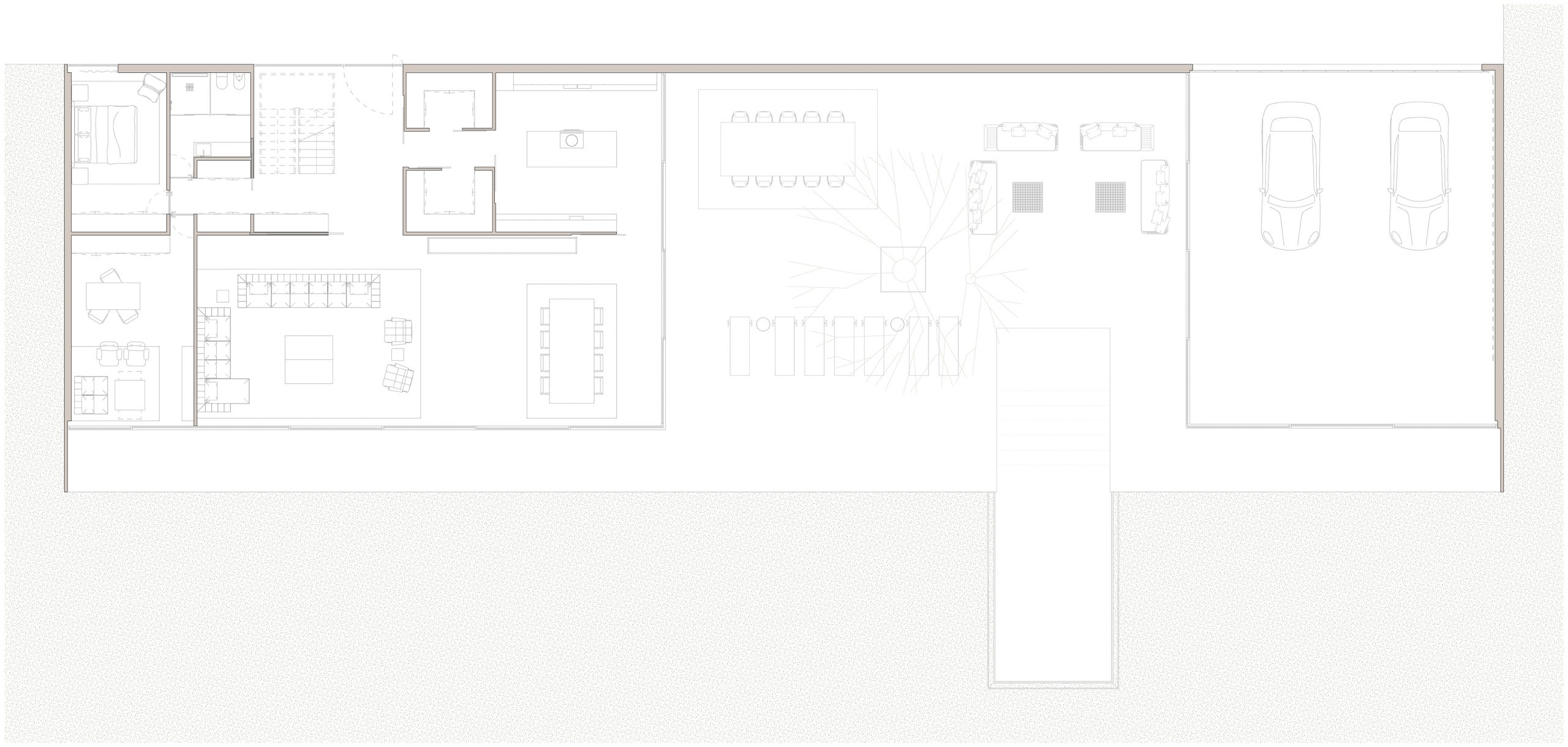
Sur la base de la stratégie du projet selon laquelle la maison ne serait pas fragmentée, un volume unique a été pensé pour unir les deux expériences. Ainsi, deux volumes sont projetés, un rez-de-chaussée qui accueillera les espaces sociaux, intérieurs et extérieurs et un premier étage avec les espaces privés.
Relation intérieur/extérieur
Le défi de créer une transition entre les espaces sans intersections
Conçue en béton blanc, la lecture des deux volumes est autonome et créée par le dessin des lignes horizontales de la façade. La transition entre l’espace intérieur et extérieur est continue et se fait sans aucune sorte d’intersection.
Équilibre entre ce qui est construit et ce qui est demandé
Le concept fondamental était l’organisation de l’intérieur en équilibre total avec les zones demandées et leur environnement.
Le défi de ce projet était l’organisation intérieure demandée en harmonie avec le lieu. Ainsi, sur les deux étages de la villa se trouvent les espaces sociaux au niveau du rez-de-chaussée ainsi qu’un espace pour les invités et un bureau, et à l’étage 1, l’espace privé, les chambres des enfants du couple, un bureau/salle de jeux et la suite parentale.
Étage 0 | Étage 1
Galerie de projets
.
Modèle 3D
Impression 3D de la Maquette
La maquette rapproche le projet de la réalité. La rapidité de l’impression 3D permet de tester différentes options de façade, de métrique ou d’autres constructions et de conclure celle qui répondra le mieux aux exigences initiales de chaque projet.




































